Khu dân cư Exim Garden
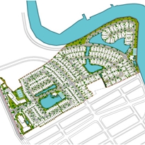
Sơ đồ tổng thể Khu dân cư Exim Garden
Tin rao thuộc dự án
Xem tin rao Bán đất nền dự án tại Khu dân cư Exim Garden
Dự án cùng khu vực
KDC Hoàng Anh Minh Tuấn
Đường Đỗ Xuân Hợp, Phường Phước Long B, Quận 9, Hồ Chí Minh
Giá từ:Đang cập nhật
Khu đô thị mới Đông Tăng Long
Đường Nguyễn Duy Trinh, Phường Trường Thạnh, Quận 9, Hồ Chí Minh
Giá từ:11 triệu/m²

